︎
︎
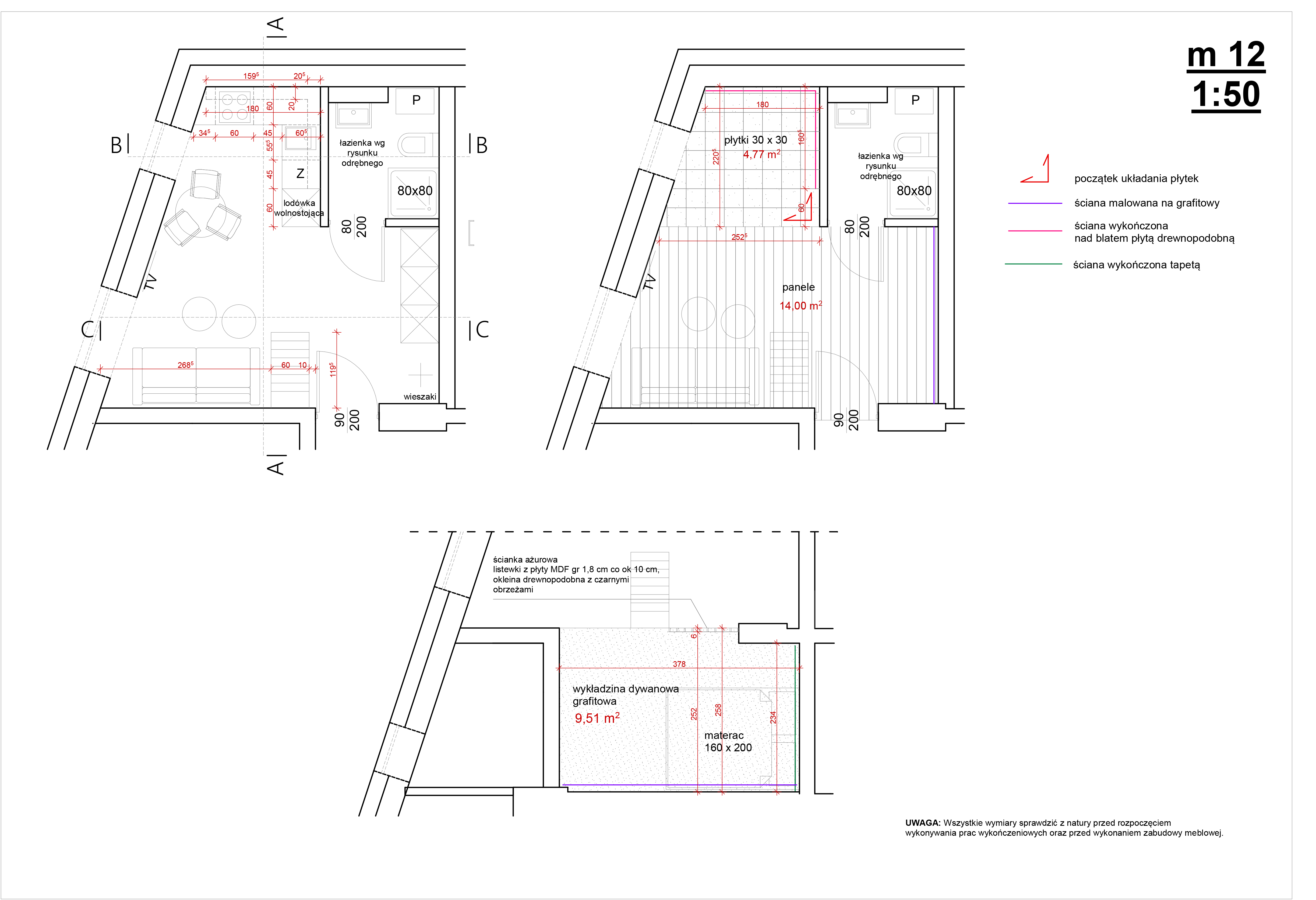
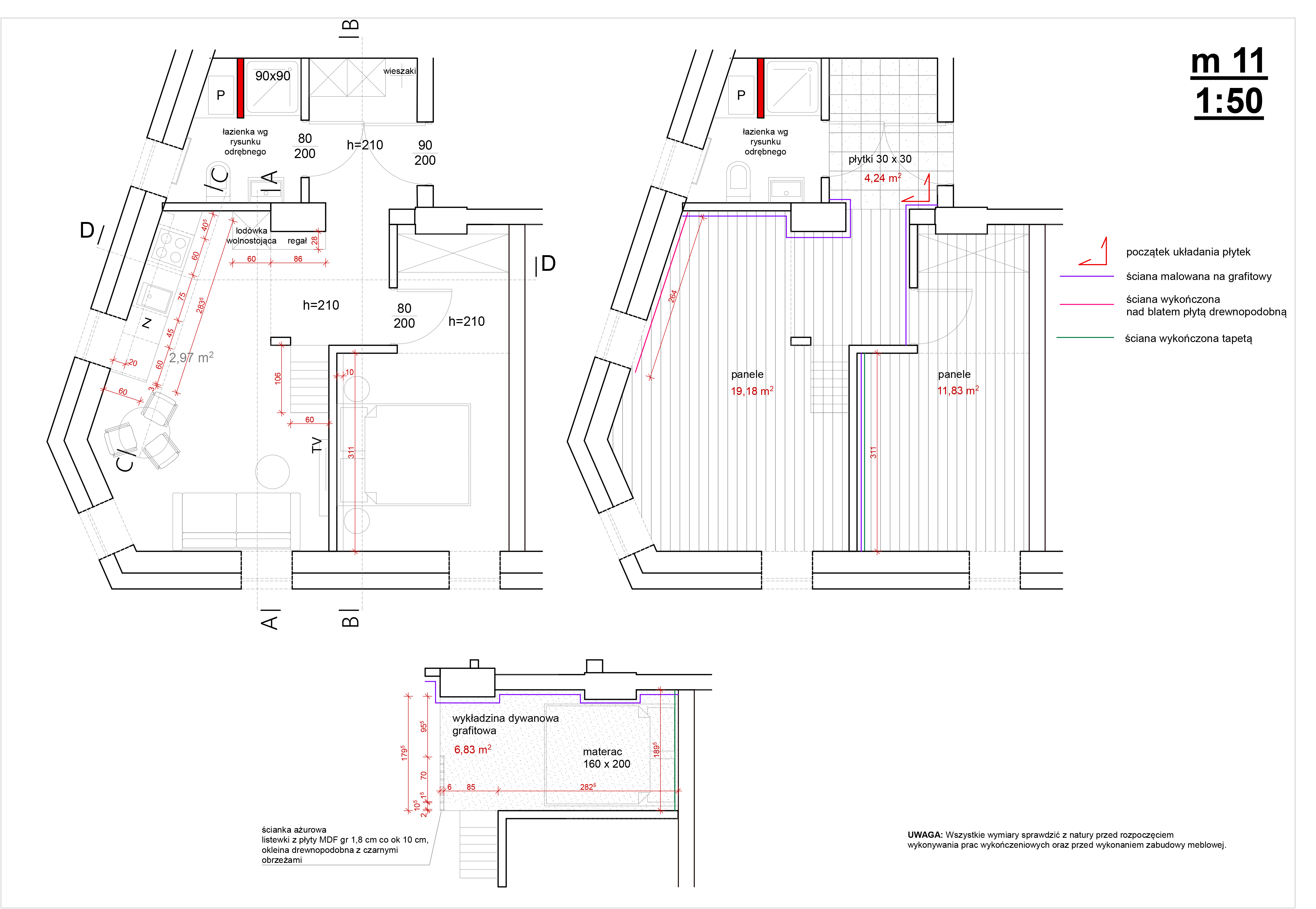
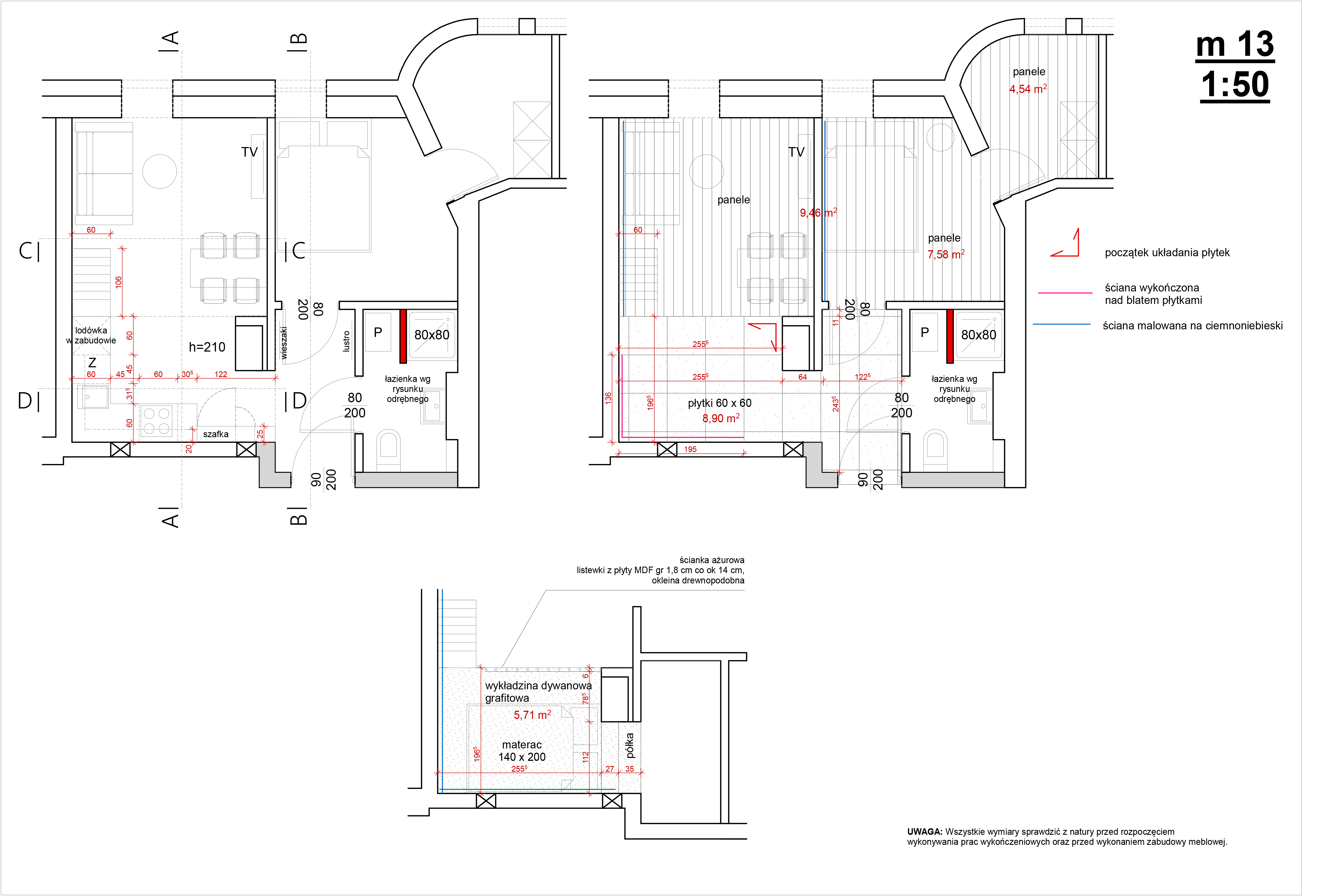
justyna olejnik
tytuł: projekt 13 mieszkań na wynajem w kamienicy - Łódź
rok:
2020
inwestor:
prywatny
status: projekt - przed realizacją